










Vuokrataan toimistotilat, tuotantotilat - Espoo
Kiilaniityntie 10, Koskelo, 02920 Espoo #10841259
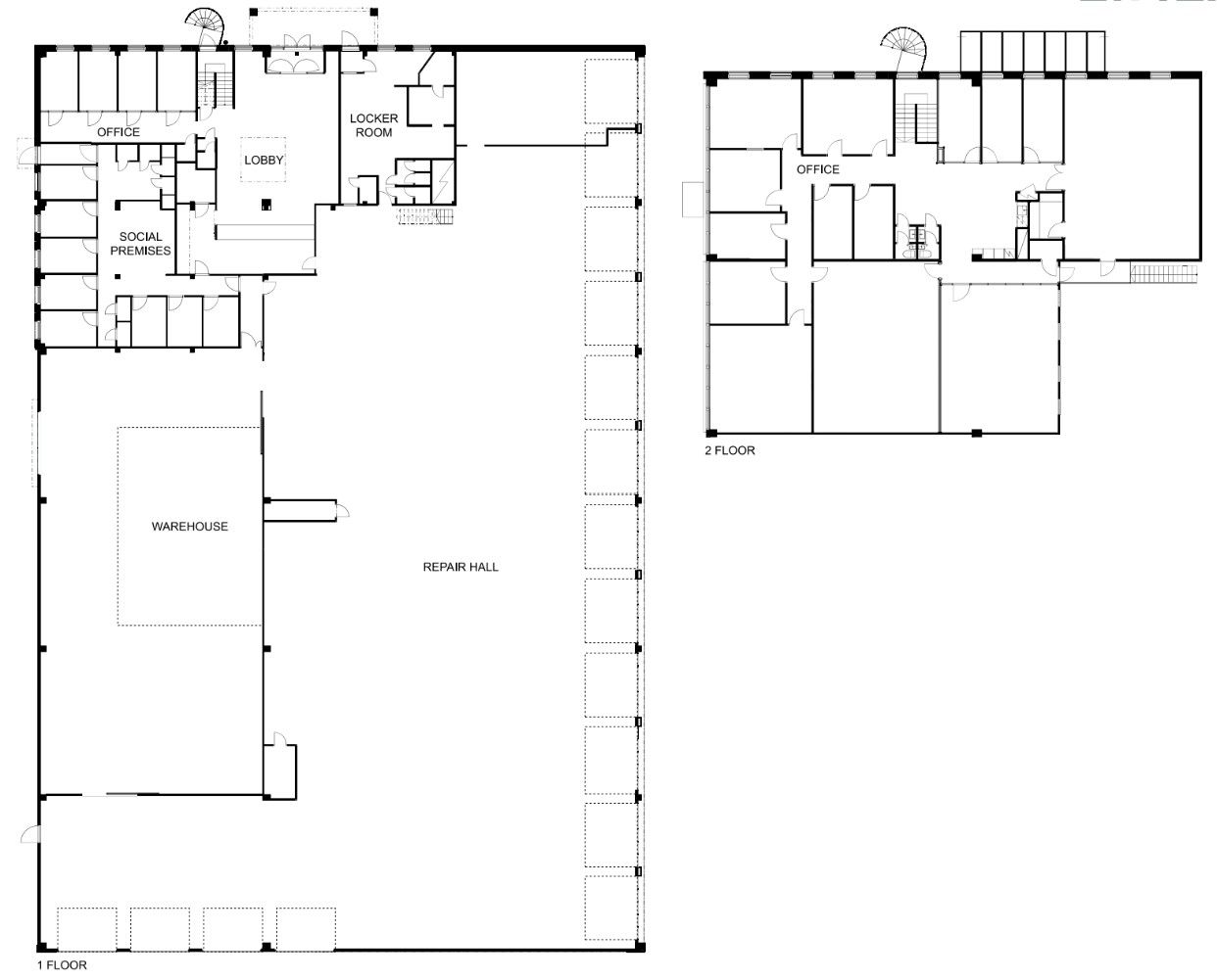
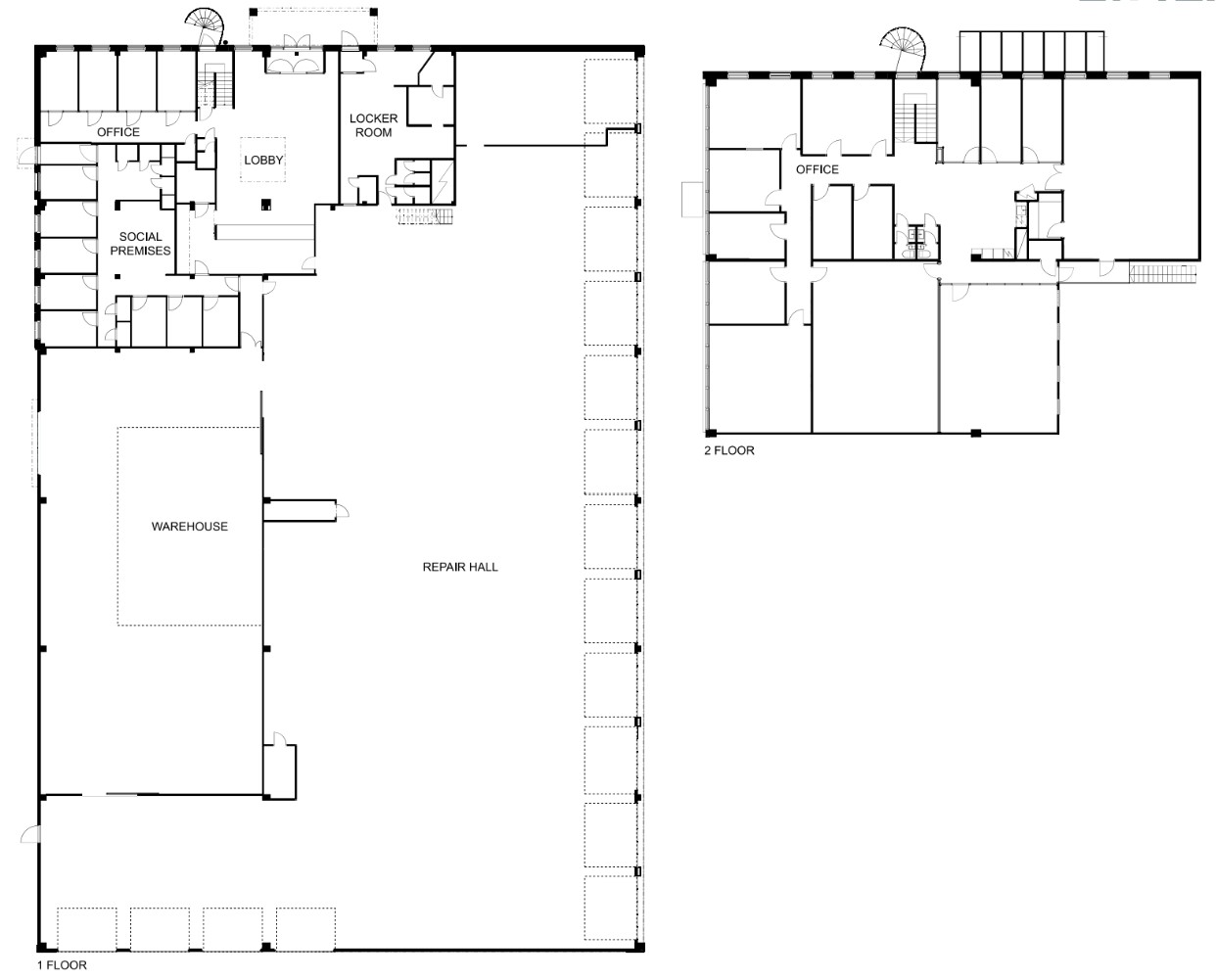
Vuokrataan Espoon Koskelosta, Kehä III väylän varrelta 2.855m2 teollisuusrakennus, joka on toiminut raskaan kaluston huoltohallina sekä varastona. Tilojen korkeus on n. 6 metriä, rakennuksessa on 17 sisään ajettavaa nosto-ovea ja erillinen pesuhalli. Talossa on myös 540m2 toimistotilaa sekä henkilökunnalle tarvittavat sosiaalitilat. Kokonaisuus on erittäin hyvässä kunnossa. Lisäksi kiinteistöllä on 1.8ha suuruinen piha-alue, jossa voi varastoida tavaraa tai säilyttää kuljetuskalustoa, rekkaperiä jne. SOITA ja SOVI ESITTELY, palvelumme on maksutonta: 09 7745 100.
Osoite
Kiilaniityntie 10, 02920 Espoo
Tilatyyppi
Toimistotilaa
540 m2
Tuotantotilaa
2315 m2
Yhteensä
2855 m2
Tila soveltuu
Autokorjaamo
Kiinteistö
Tuotanto ja varasto.
Sijainti
Espoo-Koskelo.
Ympäristö
Kehä III:n varrella.
Pysäköinti
Pihalla runsaasti parkkitilaa.
Kulkuyhteydet
Kehä III
Vapautuu
Heti
Katutasossa
Näkyvällä paikalla
Ota yhteyttä
Senaatin Notariaatti Oy LKV
Lämmittäjänkatu 4 A
FIN-00880 Helsinki
Tel:
Näytä puhelinnumero
+358 9 7745 100
Pyydä lisätietoa