For rent retail - Helsinki
Aleksanterinkatu 13, Keskusta, 00100 Helsinki #10780404
Aleksi 13 tavaratalona tunnetussa rakennuksesta vuokrattavana katutason liiketila Aleksanterinkadun puolella. SOITA ja SOVI ESITTELY, Puh. 09 77 45 100.
Address
Aleksanterinkatu 13, 00100 Helsinki
Type
Retail
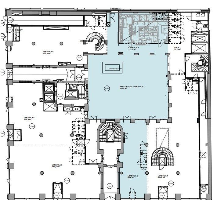
474 m2
Divisible
Esim. kokoluokissa 384m2, 870m2, 1200m2
Plan
Property
Toimisto ja liiketalo
Location
Aleksanterinkadun ja Mikonkadun kulmassa.
Surroundings
Ydinkeskusta.
Parking
Maanalainen pysäköinti.
Services
TALON PALVELUT KÄYTETTÄVISSÄ
- aulapalvelu
- neuvottelutiloja
- koulutustilaa
- tapahtumatilat
- ravintola, kahvila
- catering
- saunat
- aulapalvelu
- neuvottelutiloja
- koulutustilaa
- tapahtumatilat
- ravintola, kahvila
- catering
- saunat
Communications
Metro, juna ratikat
Release date
Heti
Building year
1900
Renovation year
2023-24
Street level
On a visible place
Elevator
Attachments
CONTACT
Senaatin Notariaatti Oy LKV
Lämmittäjänkatu 4 A
FIN-00880 Helsinki
Tel:
Show phone number
+358 9 7745 100
More info

